
常州市常群干燥設備有限公司
廠址: 常州市鄭陸鎮焦溪工業開發區
郵編: 213116
電話: 0519-88910067 0519-88900994
傳真: 0519-88900994
聯系人: 王才平
手機: 13861055230
網址:http://m.mqfsl.net.cn
郵箱: cq@cqdry.com
產品概述
??本機組是一種可以同時完成干燥和造粒的裝置。按工藝要求可以調節料液泵的壓力、流量、噴孔的大小,得到所需的按一定大小比例的球形顆粒。
??本機組工作過程為料液通過隔膜泵高壓輸入,噴出霧狀液滴,然后同熱空氣并流下降,大部分粉粒由塔底排料口收集,廢氣及其微小粉末經旋風分離器分離,廢氣由抽風機排出,粉末由設在旋風分離器下端的授粉筒收集,風機出口還可裝備二級除塵裝置,回收率在96-98%以上。
??本機組與物料接觸部分的塔體、管道、分離器的材料,均采用SUS304制作。在塔體內部與外殼之間有足夠的保濕層,填充材料為超細玻璃棉,塔體設有觀察門、視鏡、光源及控制儀表,由電器控制操作臺控制和顯示。
產品應用
制藥工業:片劑、沖劑、膠囊劑顆粒;低糖、無糖的中成藥顆粒;
食品:可可、咖啡、奶粉、顆粒果汁、調味品等;
其它行業:農藥、飼料、化肥、顏料、染料等。
產品特點
1、干燥速度快,料液經霧化后表面積大大增加,在熱風氣流中,瞬間就可蒸發95%-98%的水份,完成干燥的時間僅需要十幾秒到數十秒種,特別適用于熱敏性物料的干燥。
2、所有產品為球狀顆粒,粒度均勻,流動性好,溶解性好,產品純度高,質量好。
3、使用范圍廣,根據物料的特性,可以用熱風干燥,也可以用冷風造粒,對物料的適應性強。
4、操作簡單穩定,控制方便,容易實現自動化作業。
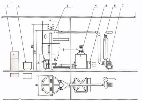
結構示意圖

噴霧干燥制粒機結構示意圖
1、控制柜 2、輸液小車 3、主機 4、換熱柜 5、亞高效過濾器 6、消聲器 7、引風機